Bồn Tiểu Nam Inax AU-468V Treo Tường AquaCeramic 0.5L
Bồn tiểu nam treo tường thiết kế mới với kiểu dáng hiện đại, sang trọng. Phù hợp cho nhà vệ sinh công cộng, nhà hàng, khách sạn, văn phòng và khu thương mại. Sản phẩm mang đến sự tiện nghi, sạch sẽ và dễ bảo dưỡng.
-
Thiết kế hiện đại: Kiểu dáng bo tròn mềm mại, bề mặt sáng bóng, giúp không gian trở nên sang trọng và tinh tế.
-
Chất liệu cao cấp: Làm từ sứ vệ sinh tráng men chống bám bẩn, dễ lau chùi, hạn chế ố vàng.
-
Cơ chế xả hiệu quả: Tích hợp hệ thống xả tiết kiệm nước, rửa sạch nhanh chóng sau mỗi lần sử dụng.
-
Lắp đặt dễ dàng: Thiết kế treo tường giúp tiết kiệm diện tích, phù hợp nhiều không gian khác nhau.
-
Thân thiện môi trường: Sử dụng công nghệ xả tiết kiệm nước, góp phần bảo vệ môi trường.
Bồn tiểu Nam Inax AU-468V cải tiến tiết kiệm nước, chống bám bẩn đến từ thương hiệu thiết bị vệ sinh INAX
-
- Đã bao gồm gioăng nối tường
- Màu sắc: Trắng
- Tiết kiệm nước với 1 lần xả 0.5L
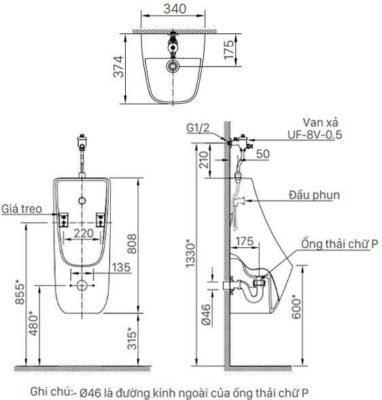
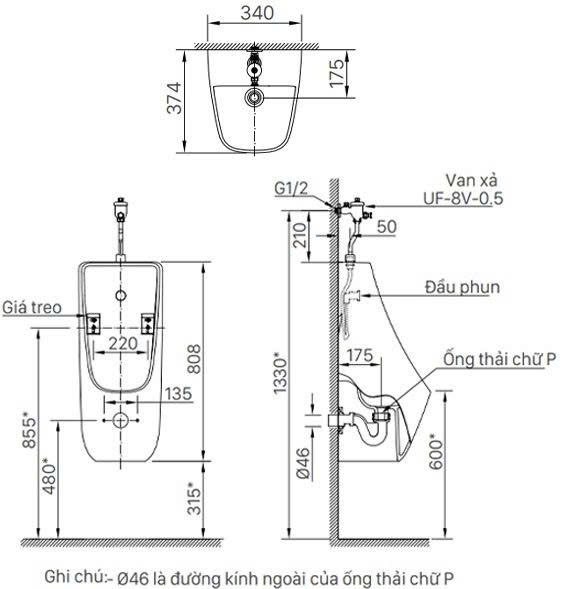
- Kích thước: 340x374x808 mm
- Áp lực nước cấp 0.07÷0.75MPa
- Có men Aqua Ceramic chống bám bẩn
- Xuất xứ: Việt Nam
Bản vẽ kích thước bệ tiểu nam Inax AU-468V




Nghĩa
Tiểu nam bóng đẹp,giao hàng nhanh chóng